Listed by Regina Melman - RE/MAX PALM REALTY OF VENICE
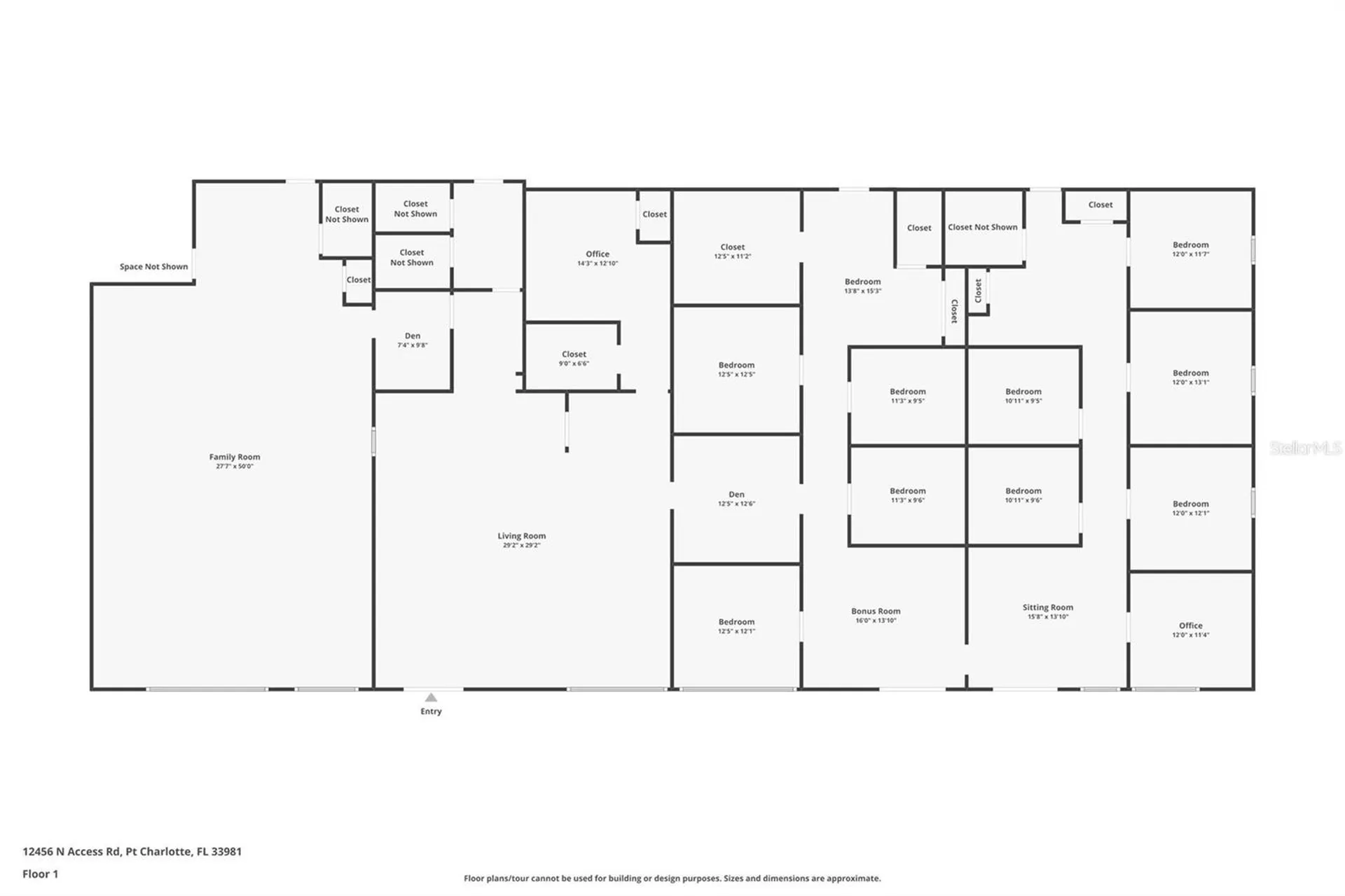
Exceptional investment opportunity. This well-maintained commercial property at 12456 North Access Road, Port Charlotte offers flexibility, strong income potential, and long-term growth upside. Built in 2006, the 5,916 sq. ft. block building sits on 0.93 acres and features four separately metered units,PUBLIC WATER AND PUBLIC SEWER, currently occupied by the established business Furniture & Dcor Encore. The property spans multiple parcels, including the main structure situated on three lots, a large parking area, and two additional lots improved with two 20x20 Commercial Storage Garages built in April 2023 on concrete slabs. Zoned Commercial General, the site allows for a wide variety of commercial uses and future development possibilities. Property features include five bathrooms, slab foundation, metal roof, and ample on-site parking. Ideally positioned directly in front of a newly approved 297-unit multifamily development, this location offers excellent exposure and strong future demand. Conveniently located near US-41, I-75, shopping, dining, medical facilities, schools, and Gulf Coast beaches, this property combines a quiet setting with easy access to major amenities. Surrounded by new construction and continued area growth, this is an ideal opportunity for investors, builders, or owner-users seeking a strategic position in a rapidly developing area.

Listing Tools

Property Details of 12456 N Access Road

Property Details

Community

Map Location

Listings courtesy of StellarMLS as distributed by MLS GRID. Based on information submitted to the MLS GRID as of January 23, 2026 2:38 PM EST. All data is obtained from various sources and may not have been verified by broker or MLS GRID. Supplied Open House Information is subject to change without notice. All information should be independently reviewed and verified for accuracy. Properties may or may not be listed by the office/agent presenting the information. IDX information is provided exclusively for consumers’ personal noncommercial use and may not be used for any purpose other than to identify prospective properties consumers may be interested in purchasing. The data is deemed reliable but is not guaranteed by MLS GRID. The use of the MLS GRID Data may be subject to an end user license agreement.

Hi there! How can we help you?

Contact us using the form below or give us a call.

Send Us A Message:

I agree to receive marketing and customer service calls and text messages from Kingfisher Real Estate. To opt out, you can reply 'stop' at any time or click the unsubscribe link in the emails. Consent is not a condition of purchase. Msg/data rates may apply. Msg frequency varies. Privacy Policy.

Do not fill in this field:

This site is protected by reCAPTCHA and the Google Privacy Policy and Terms of Service apply.