Listed by Sharon Neuhofer - COLDWELL BANKER SUNSTAR REALTY
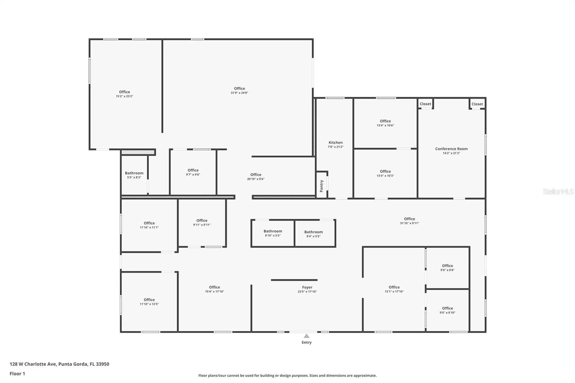
Position your business where visibility, accessibility, and community converge in downtown Punta Gorda. This established professional office building offers approximately 4,917± square feet of highly flexible commercial space designed to adapt to a variety of business needs. The interior layout includes multiple private offices, a conference room, reception area, kitchen/break room, three restrooms, and several large multi-use areas, allowing for efficient workflow and customizable configurations. The property provides parking on three sides plus convenient street parking, enhancing ease of access for staff and clients alike. With quick access to US-41 and immediate proximity to downtown businesses, restaurants, waterfront parks, and civic amenities, the location delivers excellent connectivity and day-to-day convenience. Punta Gorda is widely recognized for its vibrant, welcoming downtown and strong sense of community, making it a desirable destination for professional, medical, and service-oriented users. Zoned City Center District, this property allows for a broad range of permitted commercial uses and represents a compelling opportunity within one of the city's most sought-after commercial corridors.

Listing Tools

Property Details of 128 W Charlotte Avenue

Property Details

Interior Features

Community

Map Location

Listings courtesy of StellarMLS as distributed by MLS GRID. Based on information submitted to the MLS GRID as of February 14, 2026 5:33 AM EST. All data is obtained from various sources and may not have been verified by broker or MLS GRID. Supplied Open House Information is subject to change without notice. All information should be independently reviewed and verified for accuracy. Properties may or may not be listed by the office/agent presenting the information. IDX information is provided exclusively for consumers’ personal noncommercial use and may not be used for any purpose other than to identify prospective properties consumers may be interested in purchasing. The data is deemed reliable but is not guaranteed by MLS GRID. The use of the MLS GRID Data may be subject to an end user license agreement.

Hi there! How can we help you?

Contact us using the form below or give us a call.

Send Us A Message:

I agree to receive marketing and customer service calls and text messages from Kingfisher Real Estate. To opt out, you can reply 'stop' at any time or click the unsubscribe link in the emails. Consent is not a condition of purchase. Msg/data rates may apply. Msg frequency varies. Privacy Policy.

Do not fill in this field:

This site is protected by reCAPTCHA and the Google Privacy Policy and Terms of Service apply.