Listed by Thomas Klein - OPTIMUS CREIA
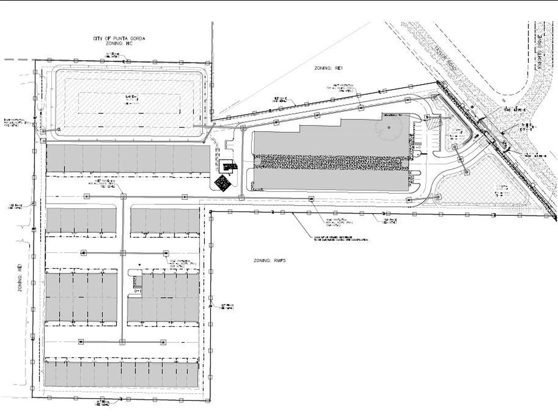
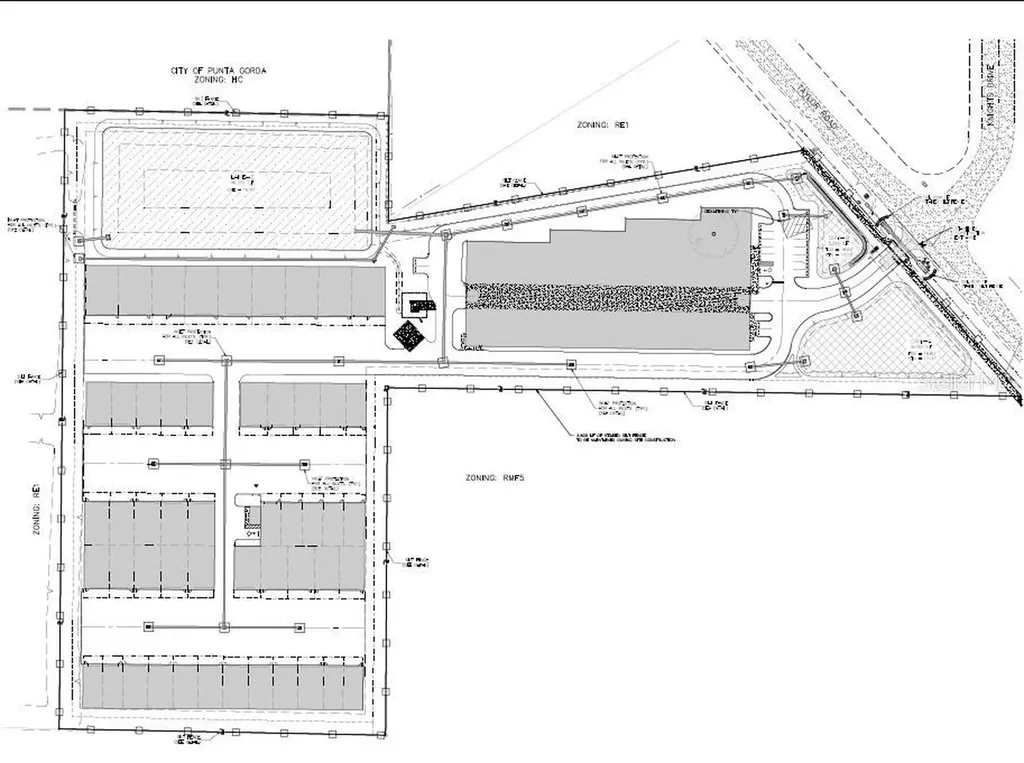
Under Construction. At Florida Premier Garage Condos, we are committed to building every facility with uncompromising quality, structural integrity, and long-term durability in mind. Our construction process is rooted in professionally engineered designs, independently verified testing, and industry-best practices to ensure that each owner receives a product built to last for decades. Because a garage condo is a significant investment, we have created a list of important questions that every buyer should ask-both of us, and of any other facility they may be considering. Not every facility in the market is built to the same standards, make sure you are asking the right questions, not just for today, but also for your long term ownership interests. Key Construction Advantages: - masonry construction, including all interior and exterior walls - Precast hollow core roof panels for enhanced durability - Reinforcing downrods every 16 inches for added stability - Intermediate tie-beam / bond-beam for increased structural rigidity - 2-hour fire-rated masonry walls between adjoining units - Units engineered to Florida's strictest building codes - 30" x 30" interior footers designed to support future mezzanine additions - Built to withstand Florida's heat, humidity, storms, and time Craftsmanship Highlights: - Built by skilled local engineers, masons, electricians, and finish specialists - Precision construction from foundation through finishing - Consistent attention to detail and structural accuracy - Teams who take pride in creating a product that performs and lasts - A build process that ensures both functionality and aesthetic quality Premium Features Include: - Insulated garage doors for energy efficiency and comfort - LED lighting throughout each unit - Individual electrical meters billed directly to unit owners - Smart WiFi-enabled systems, including: Garage door openers, Door locks, AC controls - Laundry sink for easy cleanup - Water spigot included with water & sewer provided through POA fees - WiFi access for remote control and convenience - Structural readiness for customizations like mezzanines, workshops, or personalized upgrades Unit Size Mix: 40 FT Wide By 60 FT Deep 32 FT Wide By 52 FT Deep 30 FT Wide By 52 FT Deep 25 FT Wide By 52 FT Deep Call for more information!

Listing Tools

Property Details of 5225 Taylor Road

Property Details

Interior Features

Map Location

Listings courtesy of StellarMLS as distributed by MLS GRID. Based on information submitted to the MLS GRID as of March 14, 2026 6:00 AM EDT. All data is obtained from various sources and may not have been verified by broker or MLS GRID. Supplied Open House Information is subject to change without notice. All information should be independently reviewed and verified for accuracy. Properties may or may not be listed by the office/agent presenting the information. IDX information is provided exclusively for consumers’ personal noncommercial use and may not be used for any purpose other than to identify prospective properties consumers may be interested in purchasing. The data is deemed reliable but is not guaranteed by MLS GRID. The use of the MLS GRID Data may be subject to an end user license agreement.

Hi there! How can we help you?

Contact us using the form below or give us a call.

Send Us A Message:

I agree to receive marketing and customer service calls and text messages from Kingfisher Real Estate. To opt out, you can reply 'stop' at any time or click the unsubscribe link in the emails. Consent is not a condition of purchase. Msg/data rates may apply. Msg frequency varies. Privacy Policy.

Do not fill in this field:

This site is protected by reCAPTCHA and the Google Privacy Policy and Terms of Service apply.